Продаж 3-к.кв. в ЖК “Крістер Град”

ID:10089
Контактна інформація
- Газ:Ні
- Тип будинку:Часть дома
- Высота потолків:2.75
- Кількість спалень:3
- Ремонт:євроремонт
- Планування:улучшенная планировка
- Класс житла:комфорт-класс
- Рік будівництва:2016
- Без комісії:Ні
Продаж 3-кімнатної квартири в ЖК “Крістер Град”, вул. Сергія Данченка, 1 (Виноградар)
Опис:
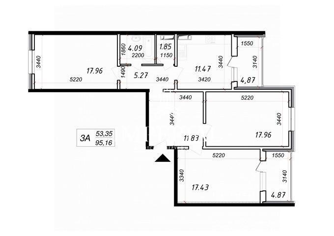
Простора трикімнатна квартира загальною площею 95 м², розташована на 12 поверсі 25-поверхового будинку у сучасному житловому комплексі “Крістер Град”.
Квартира з якісним ремонтом, готова до заселення. Зручне планування — три окремі кімнати, просторий хол і додатковий коридор, що забезпечують комфортне зонування.
Характеристики:
Тип стін — панельний
Клас житла — комфорт
Планування — роздільне
Санвузол — роздільний
Опалення — власна котельня
Ремонт — євроремонт
Комфорт та оснащення:
Балкон і лоджія (обидва засклені), ванна, гардеробна кімната, у подарунок комора ( кладова 3,5 м² у коридорі), тепла підлога на кухні та у санвузлах, меблі на кухні, конс’єрж, ліфт (пасажирський і вантажний).
Комунікації:
Центральна каналізація, електрика, центральний водопровід.
Інфраструктура:
ЖК розташований у зручному районі з розвиненою інфраструктурою — поруч ринок, школи, дитячі садки, аптеки, банки, супермаркети, ТРЦ, ресторани, парк і зелена зона.
Поруч активно будується станція метро “Виноградар” — майбутня зупинка буде у пішій доступності.
Комісія агентства нерухомості Imperial — 5%
Опис:
Простора трикімнатна квартира загальною площею 95 м², розташована на 12 поверсі 25-поверхового будинку у сучасному житловому комплексі “Крістер Град”.
Квартира з якісним ремонтом, готова до заселення. Зручне планування — три окремі кімнати, просторий хол і додатковий коридор, що забезпечують комфортне зонування.
Характеристики:
Тип стін — панельний
Клас житла — комфорт
Планування — роздільне
Санвузол — роздільний
Опалення — власна котельня
Ремонт — євроремонт
Комфорт та оснащення:
Балкон і лоджія (обидва засклені), ванна, гардеробна кімната, у подарунок комора ( кладова 3,5 м² у коридорі), тепла підлога на кухні та у санвузлах, меблі на кухні, конс’єрж, ліфт (пасажирський і вантажний).
Комунікації:
Центральна каналізація, електрика, центральний водопровід.
Інфраструктура:
ЖК розташований у зручному районі з розвиненою інфраструктурою — поруч ринок, школи, дитячі садки, аптеки, банки, супермаркети, ТРЦ, ресторани, парк і зелена зона.
Поруч активно будується станція метро “Виноградар” — майбутня зупинка буде у пішій доступності.
Комісія агентства нерухомості Imperial — 5%