Оренда комерційного приміщення, Поділ. Генератор

ID:9747
Контактна інформація
- Газ:Ні
- Тип будинку:Часть дома
- Высота потолків:2.75
- Ремонт:капітальний ремонт
- Без комісії:Ні
Оренда офісу в бізнес-центрі «Межигірський» | Поділ, метро Тараса Шевченка (3 хвилини пішки)
Здається затишний, повністю готовий до роботи офіс кабінетного типу у сучасному бізнес-центрі класу B.
Ідеальне розташування — вул. Межигірська, 87А, Поділ, біля метро Тараса Шевченка.
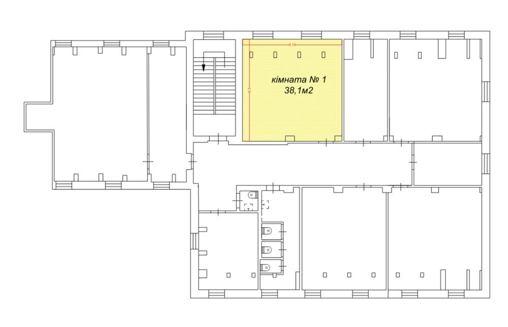
Площа: 38 м²
Поверх: 4/5
️ Будівля: бізнес-центр «Межигірський» (після 2015 року, нежитловий фонд)
Вартість включає абсолютно все:
оренду;
опалення;
електроенергію;
водопостачання;
інтернет;
обслуговування будівлі.
Переваги:
доступ 24/7;
гостьовий паркінг;
охорона території та відеоспостереження;
кондиціонування;
пожежна сигналізація;
автономний електрогенератор;
власна котельня (тепло взимку незалежно від централізованого опалення).
Для зручності:
є кухня з меблями, холодильником, мікрохвильовкою та електрочайником.
Локація: центр Подолу, зручна транспортна розв’язка, 3 хвилини пішки до метро Тараса Шевченка.
Офіс чудово підійде для невеликої компанії, ІТ-команди, дизайнерського чи бухгалтерського бюро.
Здається затишний, повністю готовий до роботи офіс кабінетного типу у сучасному бізнес-центрі класу B.
Ідеальне розташування — вул. Межигірська, 87А, Поділ, біля метро Тараса Шевченка.
Площа: 38 м²
Поверх: 4/5
️ Будівля: бізнес-центр «Межигірський» (після 2015 року, нежитловий фонд)
Вартість включає абсолютно все:
оренду;
опалення;
електроенергію;
водопостачання;
інтернет;
обслуговування будівлі.
Переваги:
доступ 24/7;
гостьовий паркінг;
охорона території та відеоспостереження;
кондиціонування;
пожежна сигналізація;
автономний електрогенератор;
власна котельня (тепло взимку незалежно від централізованого опалення).
Для зручності:
є кухня з меблями, холодильником, мікрохвильовкою та електрочайником.
Локація: центр Подолу, зручна транспортна розв’язка, 3 хвилини пішки до метро Тараса Шевченка.
Офіс чудово підійде для невеликої компанії, ІТ-команди, дизайнерського чи бухгалтерського бюро.