Оренда сучасного офісу у бізнес-центрі Business City вул. Пимоненка, Шевченківський район
ID:10316
Contact information
- Gas:No
- House Type:Часть дома
- Height of ceilings:3
- Repair:author's design
- Without commission:Так
Оренда сучасного офісу у бізнес-центрі Business City — вул. Пимоненка, 13, Шевченківський район
Без комісії
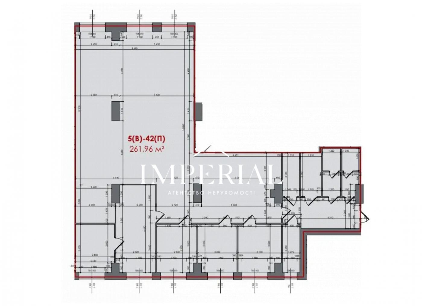
Загальна площа: 261,96 м² (розрахункова 293,4 м²)
Поверх: 4 із 5
Вартість оренди: 5 182 $/міс (з ПДВ)
Орендна ставка: 9 $/м² OPEX 5,72 $/м² ПДВ
Опис приміщення
Пропонується в оренду офіс у сучасному бізнес-центрі класу B на вул. Пимоненка, 13 — у самому серці Шевченківського району.
Просторий, функціональний простір із якісною технічною інфраструктурою — ідеальний вибір для компаній, що цінують комфорт, автономність та статус.
️ Технічні характеристики
Безперебійна електрика (генератор)
Автономне водопостачання та каналізація
Мультизональна система кондиціонування і вентиляції
Відеоспостереження, контроль доступу, охорона 24/7
Швидкісний інтернет (оптичне волокно)
Сучасні ліфти KONE
Доступ до приміщення цілодобово
Інфраструктура Business City
Лаунж-зони, 2 кав’ярні, їдальня
Укриття з Wi-Fi, опаленням і меблями
Наземний паркінг на 430 авто, велостоянка, зарядки для електрокарів
Банкомат, поштомат, банк, термінал
Внутрішній дворик із BBQ-зоною, альтанками та тренажерами
Фітнес-студія FitFactory, клуб Spot&Spa, медичні кабінети
Безкоштовний конференц-зал для резидентів
Огляд офісу можливий за попереднім записом. Дзвоніть для уточнення деталей!
Без комісії
Загальна площа: 261,96 м² (розрахункова 293,4 м²)
Поверх: 4 із 5
Вартість оренди: 5 182 $/міс (з ПДВ)
Орендна ставка: 9 $/м² OPEX 5,72 $/м² ПДВ
Опис приміщення
Пропонується в оренду офіс у сучасному бізнес-центрі класу B на вул. Пимоненка, 13 — у самому серці Шевченківського району.
Просторий, функціональний простір із якісною технічною інфраструктурою — ідеальний вибір для компаній, що цінують комфорт, автономність та статус.
️ Технічні характеристики
Безперебійна електрика (генератор)
Автономне водопостачання та каналізація
Мультизональна система кондиціонування і вентиляції
Відеоспостереження, контроль доступу, охорона 24/7
Швидкісний інтернет (оптичне волокно)
Сучасні ліфти KONE
Доступ до приміщення цілодобово
Інфраструктура Business City
Лаунж-зони, 2 кав’ярні, їдальня
Укриття з Wi-Fi, опаленням і меблями
Наземний паркінг на 430 авто, велостоянка, зарядки для електрокарів
Банкомат, поштомат, банк, термінал
Внутрішній дворик із BBQ-зоною, альтанками та тренажерами
Фітнес-студія FitFactory, клуб Spot&Spa, медичні кабінети
Безкоштовний конференц-зал для резидентів
Огляд офісу можливий за попереднім записом. Дзвоніть для уточнення деталей!