Оренда Преміум офісу у бізнес-центрі West Side, вул. Олени Теліги
ID:10351
Contact information
- Gas:No
- House Type:Часть дома
- Height of ceilings:3
- Repair:author's design
- Without commission:Так
Преміум офіс у бізнес-центрі West Side, вул. Олени Теліги, 6 — 732 м² тераса 41,6 м²
Без комісії
Клас: A (офісний центр нового покоління)
Локація: Шевченківський район, м. Київ
Метро: “Дорогожичі” — 7 хвилин пішки
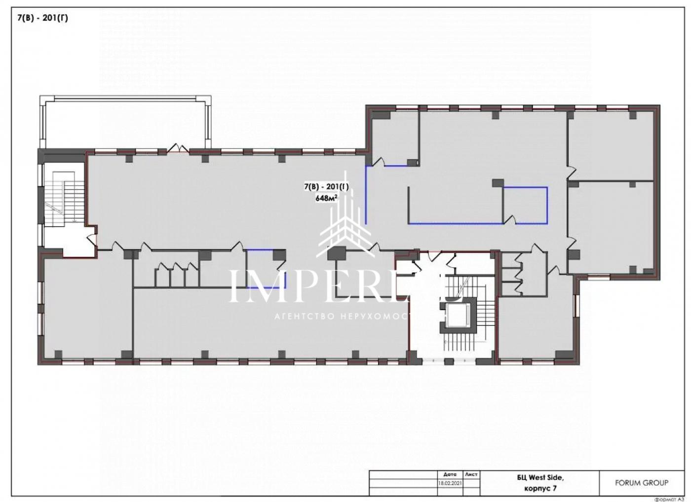
Площа: 648 м² основна 84,24 м² технічна 41,64 м² тераса
Поверх: 2-й із 4
Орендна ставка: 11 $/м² OPEX 5,72 $/м² ПДВ
Фінальна вартість: 14 841 $/місяць (з ПДВ і оплатою тераси)
Тип об’єкта: офісне приміщення, комерційна нерухомість, клас А
ОПИС ПРОСТОРУ
Пропонується офіс преміум-класу у сучасному бізнес-центрі West Side, що розташований у самому серці Шевченківського району столиці.
Приміщення площею понад 730 м² створене для компаній, які цінують репутацію, комфорт і технологічність.
Офіс готовий до роботи, має терасу 41,6 м² — ідеальне місце для корпоративних заходів, відпочинку команди або лаунж-зони просто неба.
️ ТЕХНІЧНІ ХАРАКТЕРИСТИКИ
Безперебійна електрика — потужний генератор
Автономне опалення, водопостачання та каналізація
Мультизональна система кондиціонування та вентиляції
Оптоволоконний інтернет (високошвидкісний, стабільний)
Система відеоспостереження
Доступ до приміщення 24/7
Цілодобова охорона та контроль доступу
Сучасні інженерні рішення: енергоефективне освітлення, шумоізоляція, якісне оздоблення
ІНФРАСТРУКТУРА BUSINESS CENTER WEST SIDE
Стильні лаунж-зони та презентабельні холи
Кав’ярня і їдальня на території
2 укриття з опаленням, меблями, Wi-Fi
Паркінг для авто, зарядки для електрокарів, велопарковка
Поштомат Нової Пошти
Дворик із BBQ-зоною та альтанкою
Вуличні тренажери, йога-кімната
Привітна ресепшен-зона та професійна адміністрація БЦ
ЛОКАЦІЯ
вул. Олени Теліги, 6, Шевченківський район — зручна транспортна розв’язка, швидкий виїзд на проспект Перемоги, Поділ і центр міста.
Метро "Дорогожичі" — лише 7 хвилин пішки.
Поруч — банки, ресторани, кав’ярні, аптеки, магазини, парки, офісні та IT-хаби.
ПЕРЕВАГИ
Офіс класу “A” — високий рівень енергоефективності, автономності та безпеки
Простора тераса для відпочинку або корпоративних подій
Власна інфраструктура бізнес-центру
Повна готовність до роботи
Презентабельна будівля — ідеальний варіант для штаб-квартири, IT-компанії, консалтингового бізнесу або сервісного центру
Зв’яжіться для отримання планування та організації перегляду.
Без комісії
Клас: A (офісний центр нового покоління)
Локація: Шевченківський район, м. Київ
Метро: “Дорогожичі” — 7 хвилин пішки
Площа: 648 м² основна 84,24 м² технічна 41,64 м² тераса
Поверх: 2-й із 4
Орендна ставка: 11 $/м² OPEX 5,72 $/м² ПДВ
Фінальна вартість: 14 841 $/місяць (з ПДВ і оплатою тераси)
Тип об’єкта: офісне приміщення, комерційна нерухомість, клас А
ОПИС ПРОСТОРУ
Пропонується офіс преміум-класу у сучасному бізнес-центрі West Side, що розташований у самому серці Шевченківського району столиці.
Приміщення площею понад 730 м² створене для компаній, які цінують репутацію, комфорт і технологічність.
Офіс готовий до роботи, має терасу 41,6 м² — ідеальне місце для корпоративних заходів, відпочинку команди або лаунж-зони просто неба.
️ ТЕХНІЧНІ ХАРАКТЕРИСТИКИ
Безперебійна електрика — потужний генератор
Автономне опалення, водопостачання та каналізація
Мультизональна система кондиціонування та вентиляції
Оптоволоконний інтернет (високошвидкісний, стабільний)
Система відеоспостереження
Доступ до приміщення 24/7
Цілодобова охорона та контроль доступу
Сучасні інженерні рішення: енергоефективне освітлення, шумоізоляція, якісне оздоблення
ІНФРАСТРУКТУРА BUSINESS CENTER WEST SIDE
Стильні лаунж-зони та презентабельні холи
Кав’ярня і їдальня на території
2 укриття з опаленням, меблями, Wi-Fi
Паркінг для авто, зарядки для електрокарів, велопарковка
Поштомат Нової Пошти
Дворик із BBQ-зоною та альтанкою
Вуличні тренажери, йога-кімната
Привітна ресепшен-зона та професійна адміністрація БЦ
ЛОКАЦІЯ
вул. Олени Теліги, 6, Шевченківський район — зручна транспортна розв’язка, швидкий виїзд на проспект Перемоги, Поділ і центр міста.
Метро "Дорогожичі" — лише 7 хвилин пішки.
Поруч — банки, ресторани, кав’ярні, аптеки, магазини, парки, офісні та IT-хаби.
ПЕРЕВАГИ
Офіс класу “A” — високий рівень енергоефективності, автономності та безпеки
Простора тераса для відпочинку або корпоративних подій
Власна інфраструктура бізнес-центру
Повна готовність до роботи
Презентабельна будівля — ідеальний варіант для штаб-квартири, IT-компанії, консалтингового бізнесу або сервісного центру
Зв’яжіться для отримання планування та організації перегляду.